德國格屋黄片大全下载-轉角平移黄片大全下载-免费黄片下载入口(推拉門)compaceMaster CMW/CMW-F係列:
◆ 能夠使建築出入口區域實現獨特設計風格的推拉門;
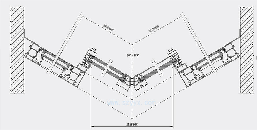
◆ 可用來實現 90° ~ 179° 之間的任意轉角;
◆ 相應的安全傳感器可以保護主關閉邊,符合 DIN 18650 標準的要求;
◆ 驅動器實際高度為 100 mm,窄框型材係統的頂端門扇型材被內置在驅動器之中,並且通過護罩將其遮蓋;
◆ 這樣就很容易將轉角推拉門內置到所有支撐結構之中,實現優美的外觀。
德國格屋黄片大全下载-轉角平移黄片大全下载-免费黄片下载入口(推拉門)econoMaster VMW/CMW-F係列產品供應、定製設計、安裝與維修(深圳市)黄片软件APP免费下载興黄片大全下载有限公司
服務谘詢:0755-25632912
技術參數

格屋轉角平移門-推拉門 compactMaster CMW/CMW-F 係列具有以下特性:
■ 采用雙電機技術的冗餘驅動器(compactMaster CMW-F),適用於逃生和急救路徑;
■ 采用可以更換的橡膠軸承滑動麵,滑動穩定性很高;
■ 驅動器實際高度隻有 100 mm;
■ 開啟速度快:達到 0.9 m/s;
■ 操作簡單,一目了然;
■ 在滑車上內置鎖定裝置自學式控製係統,有多種連接和調整方法。
產品結構(示意圖)



© 2019 深圳市黄片软件APP免费下载興黄片大全下载有限公司 版權所有 粵ICP備18060372號
